Le Roymont - "Jurachezsoi", appartement en résidence - Station des rousses | Station des Rousses

Le Roymont – “Jurachezsoi”, appartement en résidence

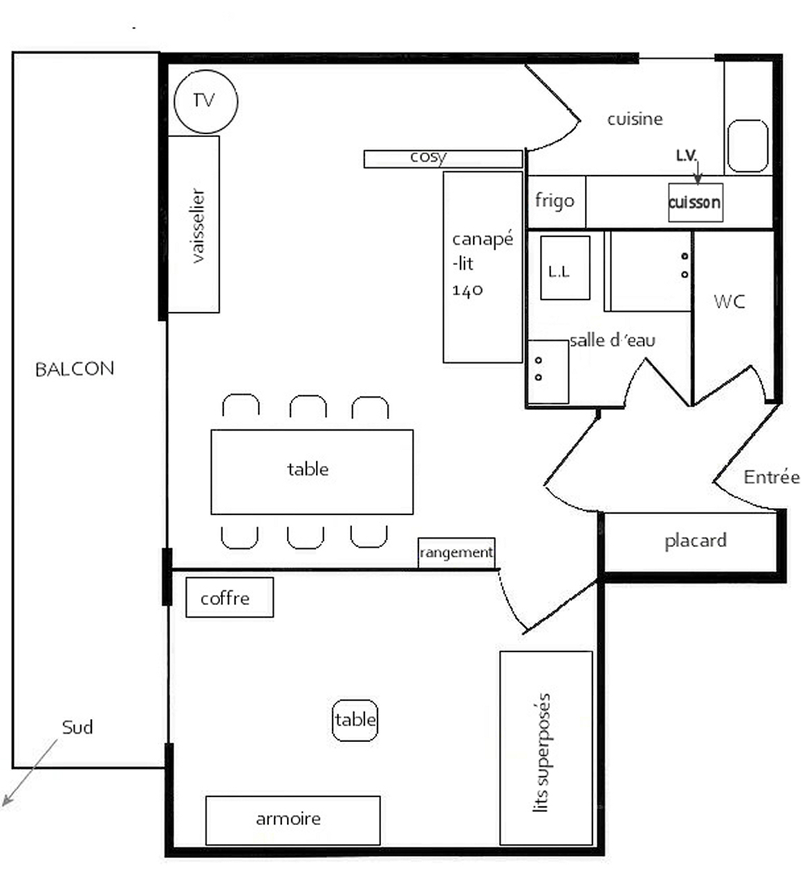
Ressourcez-vous dans un 2 pièces (42 m²) lumineux, au calme dans une résidence de standing, au bord du stade de ski de fond et à 500m du centre de la station. A 5 mn à pied, commerces et possibilité de louer du matériel sportif. Visitez le site des propriétaires sur le site internet.
Appartement au 1er étage, orienté SO avec un grand balcon (15 m²) qui invite au farniente en été avec le salon de jardin.
Vous apprécierez l'aménagement fonctionnel : cuisine, salle d'eau et WC séparés, nombreux rangements, électroménager complet pour faciliter votre séjour. Cuisine entièrement refaite à neuf en 2025.
Pour découvrir le village et la région: vous trouverez sur place des cartes et plein de suggestions de randonnées, activités, visites, restaurants.
Votre voiture, vos vélos ou skis seront à l'abri dans le parking fermé en sous-sol.
Location pour non fumeurs, animaux non acceptés. Le tarif inclut l'eau froide et un forfait d'électricité, révisable en fonction de la conso réelle relevée par EDF

TARIFS par semaine ETE 2026:
du 6 juin au 3 juillet: 337 € - du 4 juillet au 17 juillet: 430 €
du 18 juillet au 14 août: 471 € - du 15 au 21 août: 378 €
à partir du 22 août et en septembre : 337 €

Réduction 10% à partir 2ème semaine - Possibilité d'arrivée ou départ en semaine, à voir avec les propriétaires

Disponibilités

Services

  • Commerces à proximité

Confort

  • Chauffage
  • Congélateur
  • Fer à repasser
  • Hébergement non fumeur
  • Lave linge

Capacité

  • Chambres : 1
  • Nombre de personnes : 4
  • Superficie (m²) : 42
array(29) {
  ["sit_id"]=>
  string(16) "HLOBFC000V50ILGS"
  ["permalink"]=>
  string(81) "https://www.lesrousses.com/fiche/le-roymont-jurachezsoi-appartement-en-residence/"
  ["type_fiche"]=>
  string(7) "default"
  ["nom"]=>
  string(55) "Le Roymont - "Jurachezsoi",  appartement en résidence "
  ["description"]=>
  array(2) {
    ["courte"]=>
    string(0) ""
    ["longue"]=>
    string(1373) "Ressourcez-vous dans un 2 pièces (42 m²) lumineux, au calme dans une résidence de standing, au bord du stade de ski de fond et à 500m du centre de la station. A 5 mn à pied, commerces et possibilité de louer du matériel sportif. Visitez le site des propriétaires sur le site internet.
Appartement au 1er étage, orienté SO avec un grand balcon (15 m²) qui invite au farniente en été avec le salon de jardin.
Vous apprécierez l'aménagement fonctionnel : cuisine, salle d'eau et WC séparés, nombreux rangements, électroménager complet pour faciliter votre séjour. Cuisine entièrement refaite à neuf en 2025.
Pour découvrir le village et la région:  vous trouverez sur place des cartes et plein de suggestions de randonnées, activités, visites, restaurants. 
Votre voiture, vos vélos ou skis seront à l'abri dans le parking fermé en sous-sol.
Location pour non fumeurs, animaux non acceptés. Le tarif inclut l'eau froide et un forfait d'électricité, révisable en fonction de la conso réelle relevée par EDF

TARIFS par semaine  ETE 2026: 
du 6 juin au 3 juillet: 337 € - du 4 juillet au 17 juillet: 430 €
du 18 juillet au 14 août: 471 €  - du 15 au 21 août: 378 €
à partir du 22 août et en septembre : 337 €

Réduction 10% à partir 2ème semaine - Possibilité d'arrivée ou départ en semaine, à voir avec les propriétaires"
  }
  ["category"]=>
  array(4) {
    ["parent"]=>
    string(22) "Hébergements locatifs"
    ["parent_label"]=>
    string(22) "Hébergements locatifs"
    ["nom"]=>
    string(18) "Meublés et Gîtes"
    ["label"]=>
    string(18) "Meublés et Gîtes"
  }
  ["images"]=>
  array(18) {
    [0]=>
    array(3) {
      ["urls"]=>
      array(4) {
        ["url"]=>
        string(66) "https://decibelles-data.media.tourinsoft.eu/upload/sejour-2026.jpg"
        ["urlListe"]=>
        string(66) "https://decibelles-data.media.tourinsoft.eu/upload/sejour-2026.jpg"
        ["urlFiche"]=>
        string(66) "https://decibelles-data.media.tourinsoft.eu/upload/sejour-2026.jpg"
        ["urlDiaporama"]=>
        string(66) "https://decibelles-data.media.tourinsoft.eu/upload/sejour-2026.jpg"
      }
      ["alt"]=>
      string(55) "Le Roymont - "Jurachezsoi",  appartement en résidence "
      ["nom"]=>
      string(12) "séjour 2026"
    }
    [1]=>
    array(3) {
      ["urls"]=>
      array(4) {
        ["url"]=>
        string(74) "https://decibelles-data.media.tourinsoft.eu/upload/Le-Roymont-location.jpg"
        ["urlListe"]=>
        string(74) "https://decibelles-data.media.tourinsoft.eu/upload/Le-Roymont-location.jpg"
        ["urlFiche"]=>
        string(74) "https://decibelles-data.media.tourinsoft.eu/upload/Le-Roymont-location.jpg"
        ["urlDiaporama"]=>
        string(74) "https://decibelles-data.media.tourinsoft.eu/upload/Le-Roymont-location.jpg"
      }
      ["alt"]=>
      string(55) "Le Roymont - "Jurachezsoi",  appartement en résidence "
      ["nom"]=>
      string(19) "Le Roymont location"
    }
    [2]=>
    array(3) {
      ["urls"]=>
      array(4) {
        ["url"]=>
        string(59) "https://decibelles-data.media.tourinsoft.eu/upload/Orbe.jpg"
        ["urlListe"]=>
        string(59) "https://decibelles-data.media.tourinsoft.eu/upload/Orbe.jpg"
        ["urlFiche"]=>
        string(59) "https://decibelles-data.media.tourinsoft.eu/upload/Orbe.jpg"
        ["urlDiaporama"]=>
        string(59) "https://decibelles-data.media.tourinsoft.eu/upload/Orbe.jpg"
      }
      ["alt"]=>
      string(55) "Le Roymont - "Jurachezsoi",  appartement en résidence "
      ["nom"]=>
      string(4) "Orbe"
    }
    [3]=>
    array(3) {
      ["urls"]=>
      array(4) {
        ["url"]=>
        string(64) "https://decibelles-data.media.tourinsoft.eu/upload/balcon-53.jpg"
        ["urlListe"]=>
        string(64) "https://decibelles-data.media.tourinsoft.eu/upload/balcon-53.jpg"
        ["urlFiche"]=>
        string(64) "https://decibelles-data.media.tourinsoft.eu/upload/balcon-53.jpg"
        ["urlDiaporama"]=>
        string(64) "https://decibelles-data.media.tourinsoft.eu/upload/balcon-53.jpg"
      }
      ["alt"]=>
      string(55) "Le Roymont - "Jurachezsoi",  appartement en résidence "
      ["nom"]=>
      string(6) "balcon"
    }
    [4]=>
    array(3) {
      ["urls"]=>
      array(4) {
        ["url"]=>
        string(75) "https://decibelles-data.media.tourinsoft.eu/upload/Vue-balcon-sud-ouest.jpg"
        ["urlListe"]=>
        string(75) "https://decibelles-data.media.tourinsoft.eu/upload/Vue-balcon-sud-ouest.jpg"
        ["urlFiche"]=>
        string(75) "https://decibelles-data.media.tourinsoft.eu/upload/Vue-balcon-sud-ouest.jpg"
        ["urlDiaporama"]=>
        string(75) "https://decibelles-data.media.tourinsoft.eu/upload/Vue-balcon-sud-ouest.jpg"
      }
      ["alt"]=>
      string(55) "Le Roymont - "Jurachezsoi",  appartement en résidence "
      ["nom"]=>
      string(20) "Vue balcon sud-ouest"
    }
    [5]=>
    array(3) {
      ["urls"]=>
      array(4) {
        ["url"]=>
        string(79) "https://decibelles-data.media.tourinsoft.eu/upload/canape-convertible-140cm.jpg"
        ["urlListe"]=>
        string(79) "https://decibelles-data.media.tourinsoft.eu/upload/canape-convertible-140cm.jpg"
        ["urlFiche"]=>
        string(79) "https://decibelles-data.media.tourinsoft.eu/upload/canape-convertible-140cm.jpg"
        ["urlDiaporama"]=>
        string(79) "https://decibelles-data.media.tourinsoft.eu/upload/canape-convertible-140cm.jpg"
      }
      ["alt"]=>
      string(55) "Le Roymont - "Jurachezsoi",  appartement en résidence "
      ["nom"]=>
      string(25) "canapé convertible 140cm"
    }
    [6]=>
    array(3) {
      ["urls"]=>
      array(4) {
        ["url"]=>
        string(74) "https://decibelles-data.media.tourinsoft.eu/upload/Canape-position-lit.jpg"
        ["urlListe"]=>
        string(74) "https://decibelles-data.media.tourinsoft.eu/upload/Canape-position-lit.jpg"
        ["urlFiche"]=>
        string(74) "https://decibelles-data.media.tourinsoft.eu/upload/Canape-position-lit.jpg"
        ["urlDiaporama"]=>
        string(74) "https://decibelles-data.media.tourinsoft.eu/upload/Canape-position-lit.jpg"
      }
      ["alt"]=>
      string(55) "Le Roymont - "Jurachezsoi",  appartement en résidence "
      ["nom"]=>
      string(19) "Canape position lit"
    }
    [7]=>
    array(3) {
      ["urls"]=>
      array(4) {
        ["url"]=>
        string(67) "https://decibelles-data.media.tourinsoft.eu/upload/Coin-repas-3.jpg"
        ["urlListe"]=>
        string(67) "https://decibelles-data.media.tourinsoft.eu/upload/Coin-repas-3.jpg"
        ["urlFiche"]=>
        string(67) "https://decibelles-data.media.tourinsoft.eu/upload/Coin-repas-3.jpg"
        ["urlDiaporama"]=>
        string(67) "https://decibelles-data.media.tourinsoft.eu/upload/Coin-repas-3.jpg"
      }
      ["alt"]=>
      string(55) "Le Roymont - "Jurachezsoi",  appartement en résidence "
      ["nom"]=>
      string(10) "Coin repas"
    }
    [8]=>
    array(3) {
      ["urls"]=>
      array(4) {
        ["url"]=>
        string(78) "https://decibelles-data.media.tourinsoft.eu/upload/Couchages-de-la-chambre.jpg"
        ["urlListe"]=>
        string(78) "https://decibelles-data.media.tourinsoft.eu/upload/Couchages-de-la-chambre.jpg"
        ["urlFiche"]=>
        string(78) "https://decibelles-data.media.tourinsoft.eu/upload/Couchages-de-la-chambre.jpg"
        ["urlDiaporama"]=>
        string(78) "https://decibelles-data.media.tourinsoft.eu/upload/Couchages-de-la-chambre.jpg"
      }
      ["alt"]=>
      string(55) "Le Roymont - "Jurachezsoi",  appartement en résidence "
      ["nom"]=>
      string(23) "Couchages de la chambre"
    }
    [9]=>
    array(3) {
      ["urls"]=>
      array(4) {
        ["url"]=>
        string(73) "https://decibelles-data.media.tourinsoft.eu/upload/chambre-rangements.jpg"
        ["urlListe"]=>
        string(73) "https://decibelles-data.media.tourinsoft.eu/upload/chambre-rangements.jpg"
        ["urlFiche"]=>
        string(73) "https://decibelles-data.media.tourinsoft.eu/upload/chambre-rangements.jpg"
        ["urlDiaporama"]=>
        string(73) "https://decibelles-data.media.tourinsoft.eu/upload/chambre-rangements.jpg"
      }
      ["alt"]=>
      string(55) "Le Roymont - "Jurachezsoi",  appartement en résidence "
      ["nom"]=>
      string(18) "chambre rangements"
    }
    [10]=>
    array(3) {
      ["urls"]=>
      array(4) {
        ["url"]=>
        string(73) "https://decibelles-data.media.tourinsoft.eu/upload/cuisine-cote-evier.JPG"
        ["urlListe"]=>
        string(73) "https://decibelles-data.media.tourinsoft.eu/upload/cuisine-cote-evier.JPG"
        ["urlFiche"]=>
        string(73) "https://decibelles-data.media.tourinsoft.eu/upload/cuisine-cote-evier.JPG"
        ["urlDiaporama"]=>
        string(73) "https://decibelles-data.media.tourinsoft.eu/upload/cuisine-cote-evier.JPG"
      }
      ["alt"]=>
      string(55) "Le Roymont - "Jurachezsoi",  appartement en résidence "
      ["nom"]=>
      string(21) "cuisine côté évier"
    }
    [11]=>
    array(3) {
      ["urls"]=>
      array(4) {
        ["url"]=>
        string(82) "https://decibelles-data.media.tourinsoft.eu/upload/cuisine-en-entree-et-sortie.jpg"
        ["urlListe"]=>
        string(82) "https://decibelles-data.media.tourinsoft.eu/upload/cuisine-en-entree-et-sortie.jpg"
        ["urlFiche"]=>
        string(82) "https://decibelles-data.media.tourinsoft.eu/upload/cuisine-en-entree-et-sortie.jpg"
        ["urlDiaporama"]=>
        string(82) "https://decibelles-data.media.tourinsoft.eu/upload/cuisine-en-entree-et-sortie.jpg"
      }
      ["alt"]=>
      string(55) "Le Roymont - "Jurachezsoi",  appartement en résidence "
      ["nom"]=>
      string(28) "cuisine en entrée et sortie"
    }
    [12]=>
    array(3) {
      ["urls"]=>
      array(4) {
        ["url"]=>
        string(69) "https://decibelles-data.media.tourinsoft.eu/upload/Salle-d-eau-15.jpg"
        ["urlListe"]=>
        string(69) "https://decibelles-data.media.tourinsoft.eu/upload/Salle-d-eau-15.jpg"
        ["urlFiche"]=>
        string(69) "https://decibelles-data.media.tourinsoft.eu/upload/Salle-d-eau-15.jpg"
        ["urlDiaporama"]=>
        string(69) "https://decibelles-data.media.tourinsoft.eu/upload/Salle-d-eau-15.jpg"
      }
      ["alt"]=>
      string(55) "Le Roymont - "Jurachezsoi",  appartement en résidence "
      ["nom"]=>
      string(11) "Salle d'eau"
    }
    [13]=>
    array(3) {
      ["urls"]=>
      array(4) {
        ["url"]=>
        string(67) "https://decibelles-data.media.tourinsoft.eu/upload/plage-du-lac.jpg"
        ["urlListe"]=>
        string(67) "https://decibelles-data.media.tourinsoft.eu/upload/plage-du-lac.jpg"
        ["urlFiche"]=>
        string(67) "https://decibelles-data.media.tourinsoft.eu/upload/plage-du-lac.jpg"
        ["urlDiaporama"]=>
        string(67) "https://decibelles-data.media.tourinsoft.eu/upload/plage-du-lac.jpg"
      }
      ["alt"]=>
      string(55) "Le Roymont - "Jurachezsoi",  appartement en résidence "
      ["nom"]=>
      string(12) "plage du lac"
    }
    [14]=>
    array(3) {
      ["urls"]=>
      array(4) {
        ["url"]=>
        string(81) "https://decibelles-data.media.tourinsoft.eu/upload/Cascade-bief-de-la-Chaille.jpg"
        ["urlListe"]=>
        string(81) "https://decibelles-data.media.tourinsoft.eu/upload/Cascade-bief-de-la-Chaille.jpg"
        ["urlFiche"]=>
        string(81) "https://decibelles-data.media.tourinsoft.eu/upload/Cascade-bief-de-la-Chaille.jpg"
        ["urlDiaporama"]=>
        string(81) "https://decibelles-data.media.tourinsoft.eu/upload/Cascade-bief-de-la-Chaille.jpg"
      }
      ["alt"]=>
      string(55) "Le Roymont - "Jurachezsoi",  appartement en résidence "
      ["nom"]=>
      string(26) "Cascade bief de la Chaille"
    }
    [15]=>
    array(3) {
      ["urls"]=>
      array(4) {
        ["url"]=>
        string(71) "https://decibelles-data.media.tourinsoft.eu/upload/Commando-Games-2.jpg"
        ["urlListe"]=>
        string(71) "https://decibelles-data.media.tourinsoft.eu/upload/Commando-Games-2.jpg"
        ["urlFiche"]=>
        string(71) "https://decibelles-data.media.tourinsoft.eu/upload/Commando-Games-2.jpg"
        ["urlDiaporama"]=>
        string(71) "https://decibelles-data.media.tourinsoft.eu/upload/Commando-Games-2.jpg"
      }
      ["alt"]=>
      string(55) "Le Roymont - "Jurachezsoi",  appartement en résidence "
      ["nom"]=>
      string(14) "Commando Games"
    }
    [16]=>
    array(3) {
      ["urls"]=>
      array(4) {
        ["url"]=>
        string(69) "https://decibelles-data.media.tourinsoft.eu/upload/Q-route-royale.jpg"
        ["urlListe"]=>
        string(69) "https://decibelles-data.media.tourinsoft.eu/upload/Q-route-royale.jpg"
        ["urlFiche"]=>
        string(69) "https://decibelles-data.media.tourinsoft.eu/upload/Q-route-royale.jpg"
        ["urlDiaporama"]=>
        string(69) "https://decibelles-data.media.tourinsoft.eu/upload/Q-route-royale.jpg"
      }
      ["alt"]=>
      string(55) "Le Roymont - "Jurachezsoi",  appartement en résidence "
      ["nom"]=>
      string(14) "Q-route_royale"
    }
    [17]=>
    array(3) {
      ["urls"]=>
      array(4) {
        ["url"]=>
        string(61) "https://decibelles-data.media.tourinsoft.eu/upload/N-plan.jpg"
        ["urlListe"]=>
        string(61) "https://decibelles-data.media.tourinsoft.eu/upload/N-plan.jpg"
        ["urlFiche"]=>
        string(61) "https://decibelles-data.media.tourinsoft.eu/upload/N-plan.jpg"
        ["urlDiaporama"]=>
        string(61) "https://decibelles-data.media.tourinsoft.eu/upload/N-plan.jpg"
      }
      ["alt"]=>
      string(55) "Le Roymont - "Jurachezsoi",  appartement en résidence "
      ["nom"]=>
      string(6) "N-plan"
    }
  }
  ["videos"]=>
  array(0) {
  }
  ["localisation"]=>
  array(6) {
    ["gps"]=>
    array(2) {
      ["lat"]=>
      string(10) "46.4803794"
      ["lon"]=>
      string(9) "6.0652349"
    }
    ["adresse"]=>
    string(37) "Le Roymont bât C
475 route royale" ["cp"]=> string(5) "39220" ["commune"]=> string(11) "LES ROUSSES" ["pays"]=> string(6) "France" ["google_maps"]=> string(52) "https://www.google.fr/maps/dir//46.4803794,6.0652349" } ["chaine"]=> string(0) "" ["langues"]=> array(2) { [0]=> string(9) "Français" [1]=> string(8) "Allemand" } ["country_flags"]=> array(2) { [0]=> array(3) { ["pays"]=> string(6) "France" ["langue"]=> string(9) "Français" ["drapeau"]=> string(92) "https://www.lesrousses.com/content/plugins/smartfactory/public/images/sprite-drapeaux.svg#FR" } [1]=> array(3) { ["pays"]=> string(9) "Allemagne" ["langue"]=> string(8) "Allemand" ["drapeau"]=> string(92) "https://www.lesrousses.com/content/plugins/smartfactory/public/images/sprite-drapeaux.svg#DE" } } ["classement"]=> int(2) ["classement_labels"]=> string(0) "" ["moyens_communication"]=> array(3) { ["email"]=> array(1) { [0]=> string(20) "d.pernot77@gmail.com" } ["site_web"]=> array(1) { [0]=> string(27) "https://www.jurachezsoi.fr/" } ["telephones"]=> array(1) { ["tel_2"]=> string(14) "07 60 58 50 15" } } ["mode_paiement"]=> array(2) { [0]=> array(2) { ["label"]=> string(29) "Chèques bancaires et postaux" ["image"]=> string(95) "https://www.lesrousses.com/content/plugins/smartfactory/public/images/moyens_paiement/check.png" } [1]=> array(2) { ["label"]=> string(8) "Virement" ["image"]=> string(98) "https://www.lesrousses.com/content/plugins/smartfactory/public/images/moyens_paiement/virement.svg" } } ["reservation"]=> array(0) { } ["tarifs"]=> array(2) { ["values"]=> array(4) { [0]=> array(3) { ["nom"]=> string(20) "Semaine Basse Saison" ["description"]=> string(16) "+ taxe séjour " ["prix"]=> string(11) "337,00 €" } [1]=> array(3) { ["nom"]=> string(22) "Semaine Moyenne Saison" ["description"]=> string(15) "+ taxe séjour " ["prix"]=> string(11) "430,00 €" } [2]=> array(3) { ["nom"]=> string(20) "Semaine Haute Saison" ["description"]=> string(15) "+ taxe séjour " ["prix"]=> string(11) "471,00 €" } [3]=> array(3) { ["nom"]=> string(11) "Autre tarif" ["description"]=> string(158) "pour tous les tarifs ci-dessus, réduction de 10% à partir de la 2ème semaine consécutive. Les tarifs incluent l'eau et un forfait électricité révisable" ["prix"]=> string(0) "" } } ["taxe"]=> string(0) "" } ["periodes"]=> array(2) { ["has_horaires"]=> bool(false) ["values"]=> array(0) { } } ["nearest_periode"]=> array(0) { } ["labels"]=> array(0) { } ["caracteristiques"]=> array(11) { ["categories"]=> array(3) { ["icon"]=> string(8) "utensils" ["label"]=> string(15) "Type de cuisine" ["values"]=> array(0) { } } ["equipements"]=> array(3) { ["icon"]=> string(10) "equipement" ["label"]=> string(12) "Équipements" ["values"]=> array(0) { } } ["services"]=> array(3) { ["icon"]=> string(8) "services" ["label"]=> string(8) "Services" ["values"]=> array(1) { [0]=> array(1) { ["nom"]=> string(23) "Commerces à proximité" } } } ["confort"]=> array(3) { ["icon"]=> string(7) "confort" ["label"]=> string(7) "Confort" ["values"]=> array(12) { [0]=> array(1) { ["nom"]=> string(9) "Chauffage" } [1]=> array(1) { ["nom"]=> string(12) "Congélateur" } [2]=> array(1) { ["nom"]=> string(15) "Fer à repasser" } [3]=> array(1) { ["nom"]=> string(23) "Hébergement non fumeur" } [4]=> array(1) { ["nom"]=> string(10) "Lave linge" } [5]=> array(1) { ["nom"]=> string(14) "Lave vaisselle" } [6]=> array(1) { ["nom"]=> string(11) "Micro-ondes" } [7]=> array(1) { ["nom"]=> string(21) "Prise de télévision" } [8]=> array(1) { ["nom"]=> string(15) "Réfrigérateur" } [9]=> array(1) { ["nom"]=> string(14) "Sèche-cheveux" } [10]=> array(1) { ["nom"]=> string(12) "Télévision" } [11]=> array(1) { ["nom"]=> string(7) "Transat" } } } ["citation_guides"]=> array(3) { ["icon"]=> string(5) "award" ["label"]=> string(6) "Labels" ["values"]=> array(0) { } } ["activites_sur_places"]=> array(3) { ["icon"]=> string(12) "table-tennis" ["label"]=> string(20) "Activités sur place" ["values"]=> array(0) { } } ["tourisme_adapte"]=> array(3) { ["icon"]=> string(10) "wheelchair" ["label"]=> string(16) "Tourisme adapté" ["values"]=> array(0) { } } ["animaux"]=> array(3) { ["icon"]=> string(3) "pet" ["label"]=> string(17) "Animaux acceptés" ["values"]=> array(0) { } } ["type_secondaire"]=> array(3) { ["icon"]=> string(10) "equipement" ["label"]=> string(35) "Types d'équipement complémentaire" ["values"]=> array(0) { } } ["type_insolite"]=> array(3) { ["icon"]=> string(10) "campground" ["label"]=> string(16) "Types d'insolite" ["values"]=> array(0) { } } ["capacite"]=> array(3) { ["icon"]=> string(9) "capacties" ["label"]=> string(9) "Capacité" ["values"]=> array(3) { [0]=> array(2) { ["nom"]=> string(8) "Chambres" ["value"]=> string(1) "1" } [1]=> array(2) { ["nom"]=> string(19) "Nombre de personnes" ["value"]=> string(1) "4" } [2]=> array(2) { ["nom"]=> string(16) "Superficie (m²)" ["value"]=> string(2) "42" } } } } ["capacites"]=> array(3) { [0]=> array(2) { ["nom"]=> string(8) "Chambres" ["value"]=> string(1) "1" } [1]=> array(2) { ["nom"]=> string(19) "Nombre de personnes" ["value"]=> string(1) "4" } [2]=> array(2) { ["nom"]=> string(16) "Superficie (m²)" ["value"]=> string(2) "42" } } ["capacites_hebergement"]=> array(0) { } ["visite"]=> array(0) { } ["objets_lies"]=> array(0) { } ["rating"]=> array(0) { } ["planning"]=> string(3) "Oui" ["adhesion"]=> array(2) { [0]=> array(3) { ["id"]=> int(28716) ["nom"]=> string(22) "Sans commercialisation" ["value"]=> string(22) "Sans commercialisation" } [1]=> array(3) { ["id"]=> int(30831) ["nom"]=> string(16) "Pack Visibilité" ["value"]=> string(16) "Pack Visibilité" } } }

Méthode de paiement

  • Chèques bancaires et postaux
  • Virement

Langues

Français
Allemand